Property Description
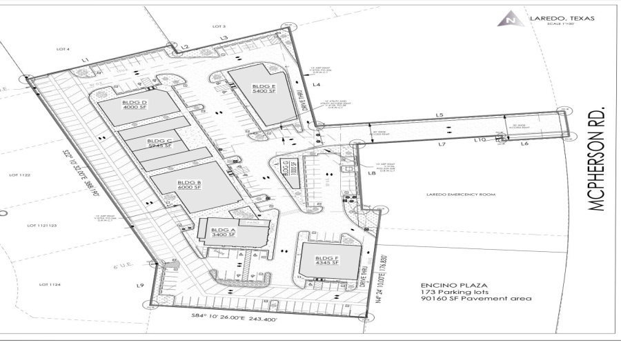
Encino Plaza – Pre-Leasing Now | Building E – 5,400 SF with Drive-Thru Building E at Encino Plaza will soon break ground! Offering 5,400 SF with drive-thru capability, ample parking, and prime visibility along a high-traffic corridor. Ideal for restaurants, retail, or service businesses seeking a brand-new location in one of Laredo’s fastest-growing areas. Pre-leasing available now—secure your space before construction is complete!
Address Map
US
TX
Webb
Laredo
78041
7518 McPherson Rd
W100° 31' 32.7''
N27° 34' 22''
MLS Addon
Retail
5
No
E
James
Villarreal
Keller Williams Laredo
Commercial retail/office
7518 McPherson Rd, Laredo, Texas 78041
5,400 Sqft
$14,850
Listing ID #20253967
Basic Details
Property Type : Commercial retail/office
Listing Type : For Rent
Listing ID : 20253967
Price : $14,850
Rooms : 1
Square Footage : 5,400 Sqft
Lot Area : 26,244 Sqft
Sq Ft Office Area : 0 Sqft
Sq Ft Warehouse : 0 Sqft
Total Square Footage : 0 Sqft
Agent info
Laredo Real Estate Magazine
6501 Arena Blvd. #110
Contact Agent

